2024 서초동 진흥골든빌라 20평형 인테리어 리모델링
interior design & remodeling for a low-rise residence unit in seocho-dong
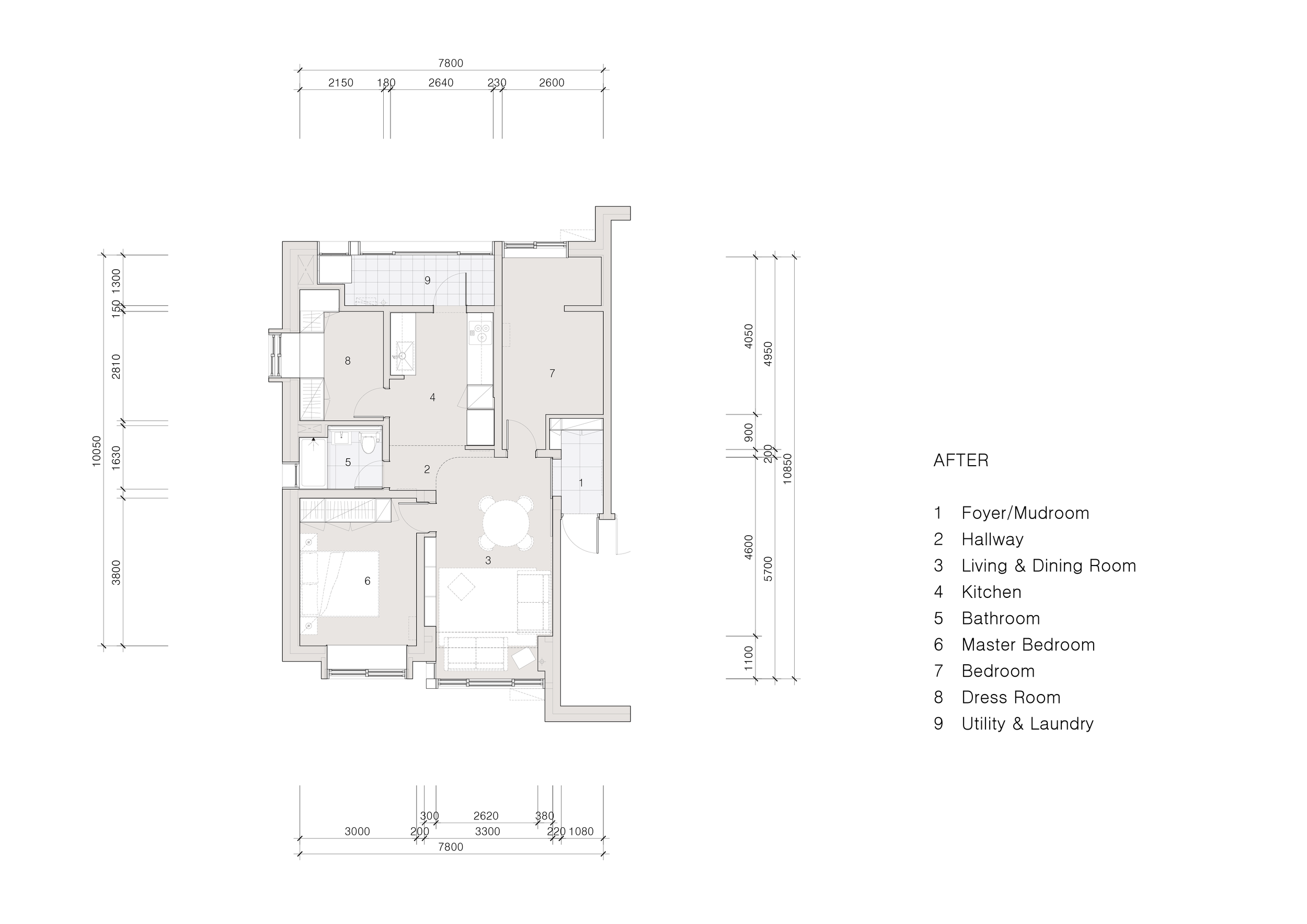
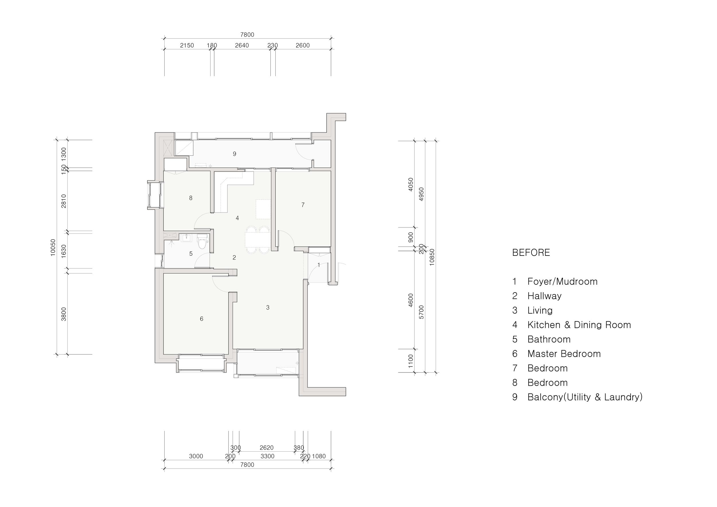
젊은 부부와 어린 아기 세 식구가 거주할 약 20평 초반의 구축 연립주택에 대한 인테리어 설계 프로젝트였다. 부부는 먼저 입구침실을 아이방으로 사용하면서 현관을 넓힐 방법을 요청하셨고 그 다음으로는 거실, 안방, 주방과 안쪽 침실까지 각 공간의 동선과 효율적인 사용에 대한 합리적이며 경제적인 계획안을 요청하셨다.
현장 방문을 통해 주방에 대한 문제점들이 가장 눈에 띄게 나타났고 주방과 접한 침실 입구의 간섭으로 원활한 싱크 확보도 어려웠고 냉장고를 포함한 가전제품들이 부자연스럽게 배치 되었으며 결국 다이닝 식탁이 욕실 주변으로 배치될 수 밖에 없는 취약점들이 나타났다.
기능적으로 공간끼리 연계성과 흐름을 재정립하면서 거주자 구성원 각각 삶의 방식에 맞는 공간 계획을 협의하고 마감재들을 선정하여 프로젝트를 진행하였다.
현 관
직경 1m 내외의 공간으로 유모차 보관은 물론 신발 신는 것 마저 협소하여 기존 신발장과 벽체를 철거하고 이를 약 1m 뒤로 후퇴 재설치하여 진입 시 깊이와 여유 공간을 확보하였다.
신발장과 기둥 사이에 거울, 작은 좌석과 하부서랍을 설치하였다.
중문을 통해 보이는 현관의 정면 벽체에 아트웍을 설치하여 고급스러움을 더하였다.
거 실
기존에 주방에 편입되어 욕실 주변에 배치될 수 밖에 없었던 다이닝 공간을 새로 확장된 거실로 재편입하여 L(Living) & D(Dining)로 구성하고 공간적 영역성을 확보하기 위해 욕실 앞 공간의 천장을 낮추어 천정 높이에 차이를 두었으며 각각 공간의 영역성을 보호하되 욕실, 주방과의 단절을 피하기 위해 연계되는 천장 상부를 곡면화 하였다.
식탁과 카우치 외 별도의 집기가구를 배치하기 협소한 거실의 관리와 장식을 위해 벽면에 책장과 하부장을 매립 설치하였다. 작은 천장을 그나마 넓어 보이기 천장조명을 다이닝 기능을 중심으로 최소한으로 사용하여 천장면을 깨끗하게 유지하고 책장 간접조명의 측광을 활용하여 부족한 조도를 확보하였다.
개 요
기 간: 2024.11-2025.01
면 적: 67.2㎡ / 20.3py (전용)
위 치: 서울시 서초동
의 뢰: 개인
용 도: 주거시설(연립주택)
설 계: 스튜디오 폼 아키텍츠 (이하 FOAM)
담 당: James Shin 신중은
C G: FOAM
시 공: 디자인그룹인텍
감 리: FOAM
중 문: 미도디자인
가 구: 순건축
커 튼: 커튼나라
촬 영: 데이오프스튜디오 류현민
예 산: 약 80,000,000 KRW (설계&시공)
마 감
천정마감: 국산벽지(공용), 국산벽지(침실)
벽체마감: 국산벽지(공용), 국산벽지(침실)
바닥마감: 국산장판마루
욕실마감: 600x600 포세린
위생기기: American Standard
전기조명: 국산
가구마감: 친환경펫, 국산LPM
창호도어: 윈켈플러스 스윙도어, 슬라이딩도어
복 도
거실/다이닝과 주방 사이의 공간, 즉 욕실 진입을 위한 공간을 복도로 규정하고 천장고를 의도적으로 약 150mm 낮추고 단차이로 형성되는 상부 벽체를 곡면화하였다.
이로 인해
1. 거실/다이닝과 주방의 영역이 더욱 구체화되고 천장고가 상대적으로 높아 보이는 효과를 연축하였다.
2. 현관에서 집안으로 진입 시 욕실/주방보다 거실 공간에 시선이 자연스럽게 집중될 수 있는 효과를 연출하였다.
3. 천장 단차이를 통해 주방 쪽에 간접조면을 추가하였다.
주 방
냉장고 설치 공간이 없던 기존 ‘ㄱ’자 형태의 싱크대를 철거하고 냉장고장과 조리대 상하부장을 나란히 설치하였다.
온수분배기 위치를 변경하지 않기로 하고 또한 조리 공간이 협소해지는 것을 또한 피하기 위해 개수대 상하부장을 조리대의 반대편 벽면에 설치하였다.
안 방
입구 침실을 제외하고 독특한 돌출 창이 있는 2개의 침실의 창호주변을 단열 보강하고 보드로 프레임을 둘러서 마감하였다. 두 침실 중 안방은 부드러운 무늬목 시트로 마감하고 청회색 벽지와 색 조화를 연출하였다.
무늬목 창호 프레임 내부 또한 무거워지는 것을 피하기 위해 가벼운 알루미늄 블라인드를 설치하였다.
드레스룸
주방 옆 침실은 침실 중 가장 협소하여 창호 양옆에 옷장과 하부에 서랍장을 설치하였다.
침 실
후퇴한 신발장으로 협소해진 입구 침실 면적을 확보하기 위해 발코니를 확장하였다.
#빌라인테리어 #서초인테리어 #서초빌라인테리어 #진흥골든빌라 #서울고인테리어 #서초고인테리어 #서초역인테리어 #서초동인테리어 #서리풀인테리어 #방배동인테리어 #서래마을인테리어 #연립주택인테리어 #구축인테리어 #구축빌라 #라운드인테리어 #20평대인테리어 #소형평수인테리어 #reconceivedportions #studiofoamarchitects #스튜디오폼아키텍츠 #FOAM
모든 사진의 저작권은 스튜디오폼 아키텍츠에게 있으며, 무단복제와 사용 시 처벌 받을 수 있습니다. All images © 2024 studio FOAM Architects
