2021 자양동 이튼타워리버1차 34평형 인테리어 리모델링
interior design & remodeling for a high-rise residence in Jayang-dong
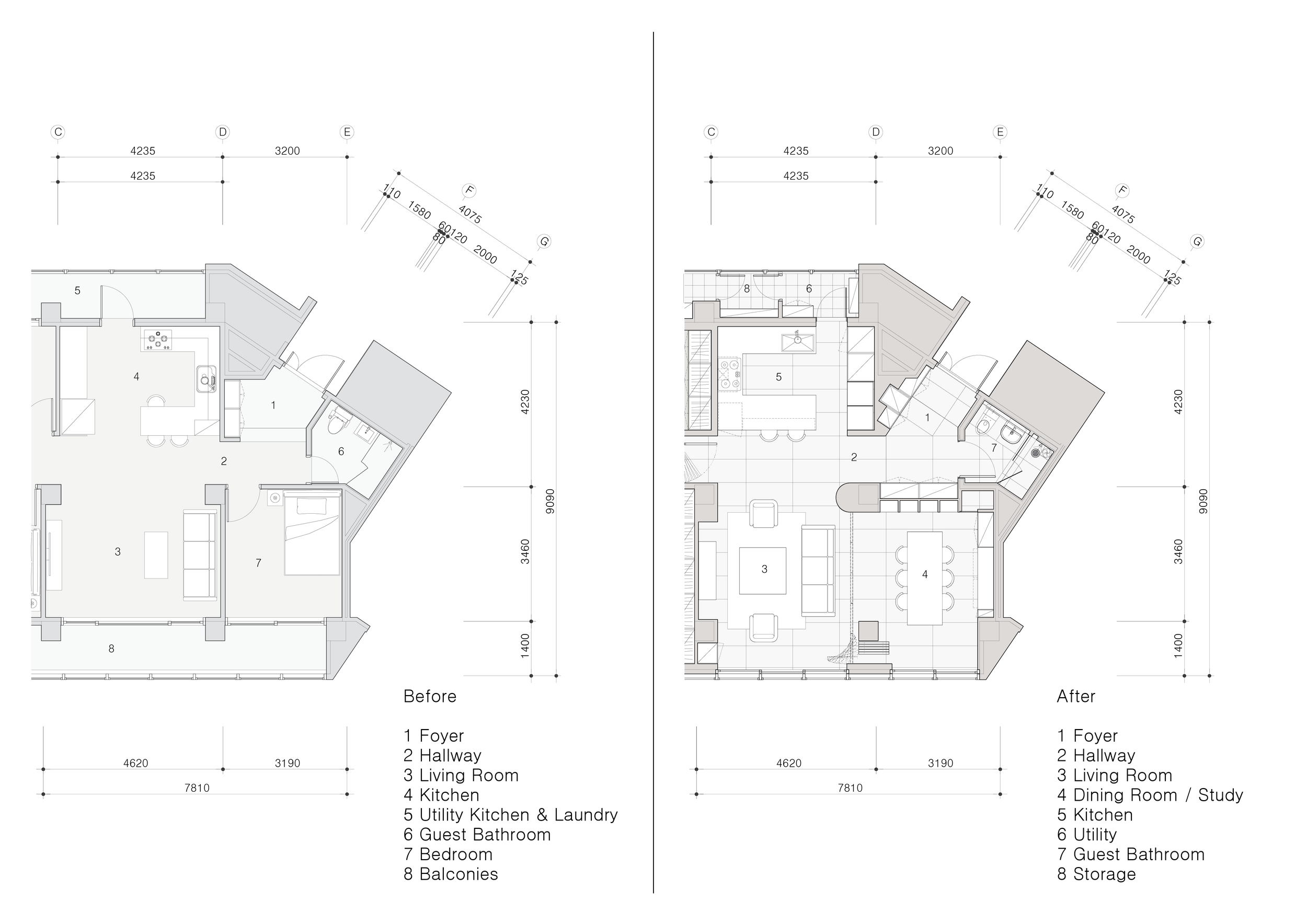
한강부터 성수동이 보이는, 와인과 음악을 즐기는 부부를 위한 중고층 30평대 3-침실 주거공간의 인테리어 리모델링 프로젝트로 그들의 라이프스타일에 맞게 전반적인 변경을 요청하셨다. 이에 열린 공간이 많고 호스팅 및 휴식 모두 가능한 고급스럽고 여유로운 LDK 공간과 바쁜 일상에 맞춰 기능적이고 워크스루 위주의 프라이빗한 마스터 공간을 제안하였고 상황에 따라 전체를 개방할 수도 있고, 각각의 영역으로 자연스럽게 분리할 수 있는 가변성을 추가하였다. 시간에 따라 도장면과 포인트인 곡면에 떨어지는 채광의 변화가 잘 드러나고 최소한의 조도만을 계획하여 저녁에는 아늑하고 차분한 분위기가 연출되었다. 전반적인 톤은 미드센추리모던과 젠스타일이 섞인, 공간별로 부드럽거나 질감이 강한 마감재들이 오버랩 되어 대비가 세련되게 표현된 프로젝트이다.
공용존
현관
신발장을 현관문 기준으로 직각 배치하여 입장하는 방향과 맞도록 구성하였다. 스타일러를 신발장 내에 설치하고 부족한 수납공간을 정면 침실 벽체에 추가하였다. 1200x600의 포세린이 현관 바닥에서부터 게스트 욕실과 거실까지 이어지도록 하고 벽체와 가구는 연한 건식무늬목으로 마감하였다.
다이닝
처음에는 입구 침실을 서재방으로 사용하고자 했는데, 사용을 조금 더 극대화하기 위해 다이닝 겸 서재로 계획하였고 거실과의 연계성을 고려해서 벽체를 허물고 가변 가능한 무빙월을 제안하였다.
창가 측 기둥에 마감을 덧대면 비대해질 것을 우려하여 현존 질감을 그대로 살려 노출상태로 두고 서재와 거실이 개방 상태에서 무빙월을 기둥 뒤에 격납하도록 하였다.
서재 중심에 원목 다이닝 테이블 겸 데스크를 두고 후면은 무늬목 콘솔장, 아트웍이 걸릴 무니크 백스플래시, 그리고 양옆에 유리 디스플레이장을 계획하였다. 기존 벽체를 없애고 현관에 추가된 신발장 반대편에 오픈 책장 추가하고 이 두 요소를 합친 벽체의 끝을 곡면으로 계획하여 주변 공간이 적당히 구분되면서 자연스럽게 융화되는 분위기를 조성하고자 하였다.
거실
보유하신 가구 컬렉션에 무게를 두고 거실 마감은 단순하고 깨끗하게 계획하였다. 벽체와 천장은 도장으로 마감하고 가구, 노출기동, 그리고 커튼의 질감이 포인트가 되도록 하였다. 기둥 주변 자투리 공간에 작은 수납장을 설치하였다.
주방
냉장고장의 위치를 기존의 반대편인 신발장 측으로 재배치하여 높은 장끼리 모으고 기존 냉장고장 위치에 싱크대 하부장을 계획하여 거실과의 연계를 높이도록 하였다. 아일랜드 상부에는 선반을 설치하여 주방과 시각적으로 영역 구분을 두고자 하였다. 전체적으로 블랙과 실버 톤으로 마감하고 작업조명과 일반조명을 구분하여 계획하였다.
마스터존
전실
80mm의 두께를 가진 전실 도어는 힌지가 상하로 매립된 비폿도어로 반대편 신발장과 같은 무늬목으로 마감하여 닫힐 시에는 깨끗한 목재 벽면과 같다. 도어를 열고 들어가면 장식 가구가 정면에 있고, 좌측으로 마스터베드룸과 욕실이 위치하고 우측에 기존 침실을 드레스룸으로 변경하였다. 전실에서 베드룸과 드레스룸의 출입구를 포켓도어로 계획하고 도어를 개방하면 도어가 없는 개부구가 중첩된 고급스러움을 연출하였다. 전실 내부에서 피봇도어까지 닫으면 마스터베드룸과 드레스룸까지 하나의 이어진 마스터존이 완성된다.
드레스룸
아일랜드 서랍장과 워크인 클로짓으로 구성된 드레스룸은 정면에 글라스 도어를 통해 세탁실과 쉽게 연결되도록 계획하였다.
마스터베드룸
마스터배드룸은 천장조명을 최소화하고 몇 개의 스팟라이트와 간접조명으로 조도를 확보하도록 하였다. 벽체는 고급스러운 그린-그레이의 Knoll 수입지로 마감하고 바닥은 벽체와 대비가 좋은 살짝 짙은 원목마루로 마감하였다.
욕실
바쁜 출근준비를 위해 기존의 좌식 화장대 겸 세면대를 입식으로 변경하고 대리석 상판 위에 탑볼 세면기를 한쪽으로 배치하고 하부장을 무늬목으로 마감하였다. 벽체에 이중 거울을 설치하고 하나는 화장용, 다른 하나는 세면용으로 구성하였다. 세면대의 반대편 벽에는 욕실용품 수납을 위한 키큰장을 설치하였다. 욕실에는 여유공간을 더 확보하기 위해 탱크리스 변기와 매립형 레인샤워와 포켓선반을 계획하였다.
개 요
기 간: 2021.06-11
면 적: 113.90㎡ / 34.45py
위 치: 자양동
의 뢰: 개인
용 도: 주거시설(주상복합)
설 계: studio FOAM Architects 스튜디오폼 아키텍츠 (이하 FOAM)
담 당: James Shin 신중은
C G: FOAM
시 공: 디자인그룹인텍
감 리: FOAM
창 호: AHC창앤덧창
조 명: 오퍼스인터내셔널
도 장: 제일도장
도 배: 신한벽지, 아티잰
무늬목: 인목, 유앤어스
마 루: 지복득마루
타 일: 티앤피세라믹, 세라미코
금 속: 메탈플레이어
위 생: 태왕세라믹스
하드웨어: 디라인, 헤벨레, 블룸, 융코리아
무빙도어: 한국무빙월
가 구: 라인키친
커 튼: 페이블
집 기: 챕터원, 에이치픽스 등
촬 영: 몽상 김용성
예 산: 약 170,000,000KRW (설계&시공)
마 감
천정마감: 도장, 벽지
벽체마감: 무늬목, 포세린, 도장, 월패널, 수입벽지
바닥마감: 1200x600 포세린, 원목마루
욕실마감: 600x600 포세린
위생기기: Duravit, American Standard, Fontana
전기조명: OM, Astro, Flos, etc
가구마감: HPL, 무늬목, 친환경펫, 세라믹박판(상판), 대리석(상판)
창호도어: 로이AL덧창, SystemM피봇도어
#이튼타워리버 #이튼타워리버3차 #자양동인테리어 #광진구인테리어 #건대인테리어 #주상복합인테리어 #주복인테리어 #아파트인테리어 #주상복합리모델링 #아파트리모델링 #컨템포러리 #미드센추리모던 #대리석바닥인테리어 #블랙주방인테리어 #가정용무빙월 #가정용피봇도어 #피벗도어 #서재겸다이닝룸 #파티룸 #다이닝서재 #단초점거싫 #이중창호 #이너창호 #덧창호 #마스터존 #무늬목인테리어 #고급인테리어 #kinaestheticcomposition #키나애스태틱컴포지션 #스튜디오폼아키텍츠 #studiofoamarchitects #FOAM
모든 사진의 저작권은 스튜디오폼 아키텍츠에게 있으며, 무단복제와 사용 시 처벌 받을 수 있습니다. All images © 2021 studio FOAM Architects
